

For Sale
1,575,000€
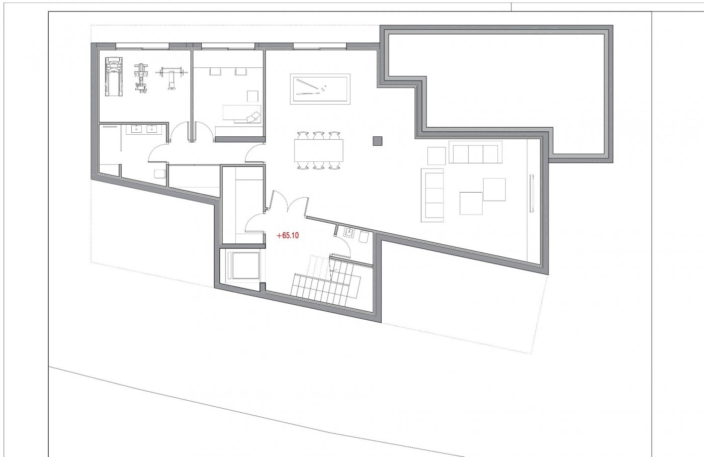
Project for a magnificent modern Villa of 440 m² construction, on a 1,100 m² plot, enjoying good panoramic views over the valley to the sea. The villa will be arranged on 3 levels, with an internal lift and it will comprise of 3 bedrooms (possibility of 4); 4 bathrooms; 2 guest toilets; a spacious living & dining room; an ample open-plan fully fitted kitchen with an island; an ample covered terrace; gym; games room and home cinema. High specification construction including underfloor heating, air conditioning (cold & hot), aluminium double glazed windows, alarm system and security entrance door. Outside, a lovely swimming pool with ample terraces, barbecue area and garden with automatic irrigation system.
While these details are believed to be correct you must satisfy yourself with a viewing - these details do not form part of any offer or contract
VILLA in MORAIRA